OFF-WHITE FLAGSHIPSTORE
"Off-White defining the grey area between black and white." - Virgil Abloh
This store is designed for the clothing brand Off-White. This brand combines street wear and high-end fashion into an harmonious unity.
The concept of the store is based on 'Seeing the city through an Off-White filter'. This both literally and figuratively, by placing a visual filter and by studying the brand's vision of the city.
This project was crucial in the context of my search for what a home means to me and how I can translate the idea of a home into my designs. That is why I made this store function like a home for this brand by bringing the city inside the store.
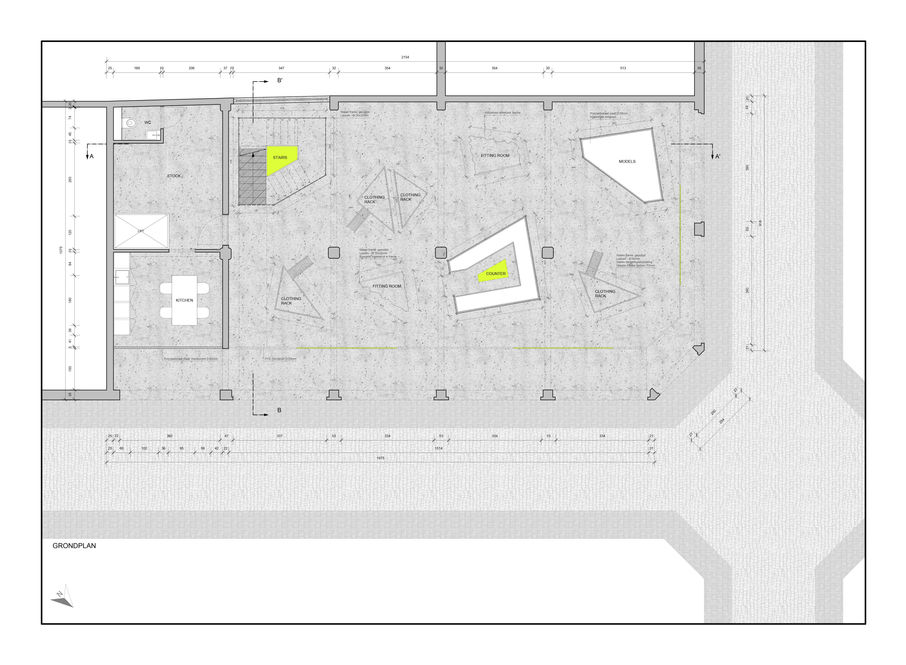
The store itself is located on the ground level. The clothing racks, fitting rooms, the stairs and the counter are all included in the large volumes which represent the buildings in the city. On the first level, you can find an exhibition of the runway collection, where you can walk on the path inbetween the volumes. This path gives you a great view over the whole store.
Materials such as steel, yard cloths with lashing straps and perforated metal panels are used a lot to bring the character of the city inside.
I connected the inside of the store, with the city in which the store is located, by hanging a PVC strip curtain on the exterior. This curtain gives you the feeling that the store is closed off but at the same time people, smells and sounds from the outside can enter the store at all times. Therefore the store is never really closed off and always connected with the city.











